世界杯官方网站下属项目世界杯官方网站 梁山县圣元环保电力有限世界杯官方网站 的梁山圣元-水冷壁管更换已经具备招标条件,现对本工程施工进行 公开 招标,欢迎有意向的投标人前来参与投标。
一 、项目概况
1、项目名称:梁山圣元-水冷壁管更换;
2、工程建设地点:山东省济宁市梁山县圣元环保电力有限世界杯官方网站内。
二、招标范围及内容
1、招标范围:在现状条件下,根据招标人提供的施工图纸、水冷壁施工说明相关规范及招标人要求完成梁山圣元-水冷壁管更换施工投标报价,与本工程建设相关的所有项目均属于本次招标范围。
2、工期要求: 7 个日历天,具体开工日期以招标人书面通知为准。
3、质量要求:符合《建筑工程施工质量验收统一标准》及其他相关规范合格标准。
4、其他要求:具备本次施工相关资质。
三、投标人资格要求及审查办法
1、本招标要求投标人须具备有效的锅炉A安装、修理、改造等相关资质和《施工企业安全生产许可证》。(不要求时,下划线内容修改为“/”)
2、 投标人拟担任本招标的项目负责人(即项目经理,下同)须具备有效的 / 级 / 专业注册建造师执业资格,并具备有效的安全生产考核合格证书(B证)。(不要求时,下划线内容修改为“/”)
3、本招标 不接受 联合体投标。
4、投标人所承建的工程近 3 年内未发生过重大质量事故。
5、本招标采用 资格后审 方式对投标人的资格进行审查。
6、其他要求:无。
四.招标文件的获取
1、凡有意参加的投标人,请于 2025 年1月18日至2025年1月23日通过圣元环保友云采门户网站(网址同下)免费下载电子招标文件等相关资料。
2、投标人获取招标文件后,应检查招标文件完整性。
五、评标办法和定标方式
1、本招标项目采用的评标办法:综合评分法。
2、本招标项目采用的定标方式:采用评定分离方式确定中标人。
六、投标文件的递交
1、投标文件递交的截止时间(即投标截止时间或开标时间): 2025 年 1月23日10时00分(北京时间),投标人应在截止时间前通过圣元环保友云采门户网站(网址同下)递交电子投标文件;
2、逾期上传的投标文件,圣元环保友云采门户将予以拒收。
七、发布公告的媒介
本次招标公告同时在圣元环保友云采门户(https://pur.yonyou.com/chinasyep)、世界杯官方网站官网(网址https://www.high-mountains-tourism.com)和中国采购与招标网(网址https://www.chinabidding.com.cn)上发布。
八、供应商注意事项
有意参与投标的供应商可登陆圣元友云采门户(网址同上)在首页帮助中心下载相关手册,新供应商需先按照《新供应商注册手册》进行免费注册,已注册的供应商可直接按照《供应商投标操作手册》参与投标。供应商注册等相关问题可联系0595-22503948转8105。
九、联系方式
招标人:梁山县圣元环保电力有限世界杯官方网站
地 址:山东省济宁市梁山县杨营镇大杨村
联系人:徐先生 电话:18562437333
十、工程内容:
|
序号 |
施工内容 |
工程量 |
备注 |
|
1 |
水冷壁拆除 |
70根 |
以实际工作量结算 |
|
2 |
水冷壁安装 |
70根 |
以实际工作量结算 |
|
3 |
水冷壁保温拆除及恢复 |
约40㎡ |
外保温利旧,内保温换新 |
|
4 |
脚手架搭设/拆除 |
长14m宽3m高28m |
|
|
5 |
通球试验及无损检测 |
100% |
|
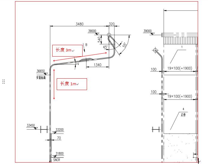
水冷壁施工说明
1、此次施工内容为更换前墙水冷壁70根(每5根为一组),更换长度为弯管下部1000mm,弯管上部3000mm,详见图1
2、报价包含除水冷壁材料外所有费用,所有施工所需的辅材及其他材料由投标方提供。
3、施工措施费用(脚手架搭设及安全防护措施等)由投标方负责。
4、集箱及附属管道外保温的拆除及恢复工作由投标方负责,包含所需保温材料。
图1:






